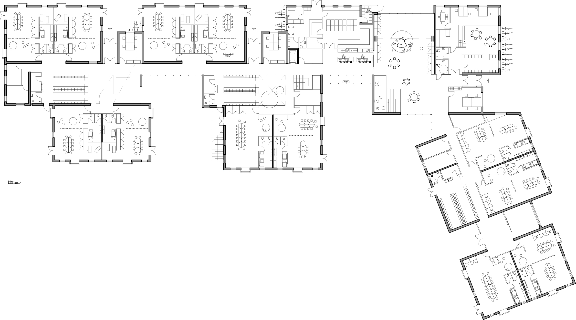
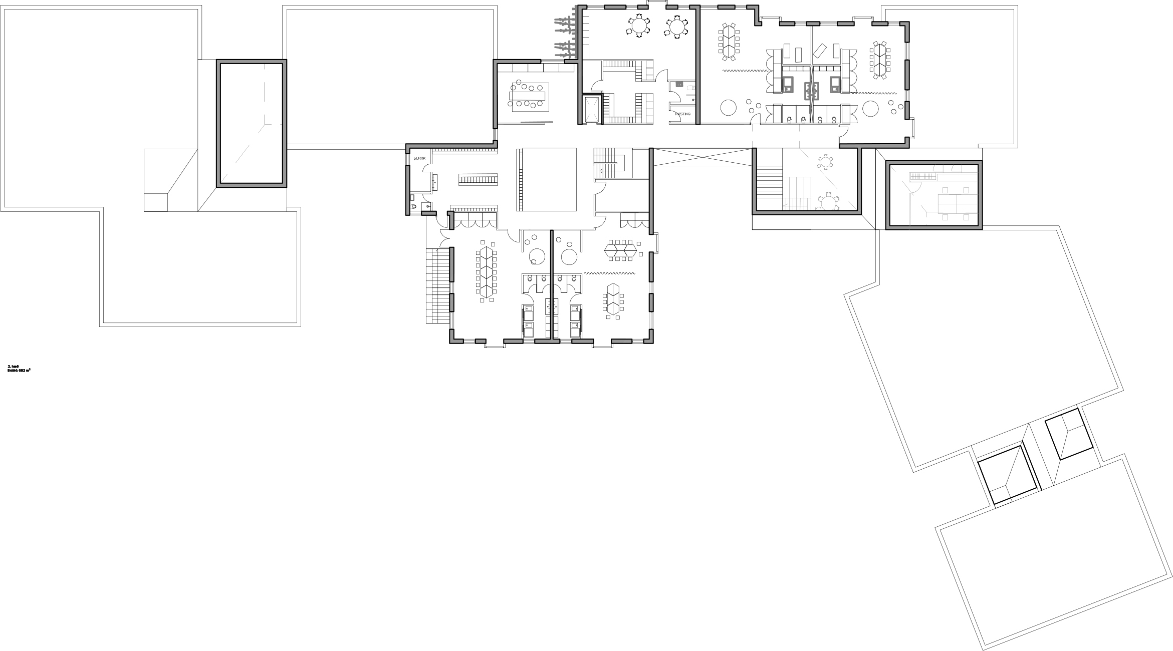
Strýtur

Proposal for a kindergarten
Location: Reykjavík Iceland

Collaboration: David Hugo Cabo, Tvihorf Arkitektar






















Back     info